인쇄하기/글자확대.축소
기본 크게 더크게 인쇄 스크랩 목록보기페이지 정보
작성자.헬프컴퍼니
작성일.2025-12-19 10:45:07
조회.334
댓글.0
본문
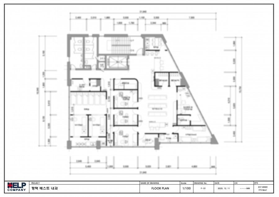
ㆍ 상 호 | 평택 OO 내과
ㆍ 위 치 | 경기도 평택시
ㆍ 규 모 | 72.0 PY
ㆍ 준공일자 ㅣ
현재 리모델링 계획 중에 있는 평택 OO 내과 입니다.
운영 효율을 고려한 공간 기획을 중심으로
원장님과 소통하며 설계를 진행하고 있습니다.
인쇄하기/글자확대.축소
기본 크게 더크게 인쇄 스크랩 목록보기댓글목록
등록된 댓글이 없습니다.







